Price Range: from 200 € to 1,000,000 €
Size Range: from 10 m2 to 1,000 m2
Price Range: from 200 € to 1,000,000 €
Size Range: from 10 m2 to 1,000 m2
  • 202 views

Case insiruite in zona Margelelor, Complex 16 case

(pretul include TVA) 115,000 €

Description

Ansamblul de case insiruite in zona Margelelor, este format din 2 siruri a cate 8 case insiruite, dispuse fata in fata cu drum de acces pe mijloc si cu intrare privata.
Complexul este racordat la canalizare, electricitate si gaz, iar fiecare casa va avea put.
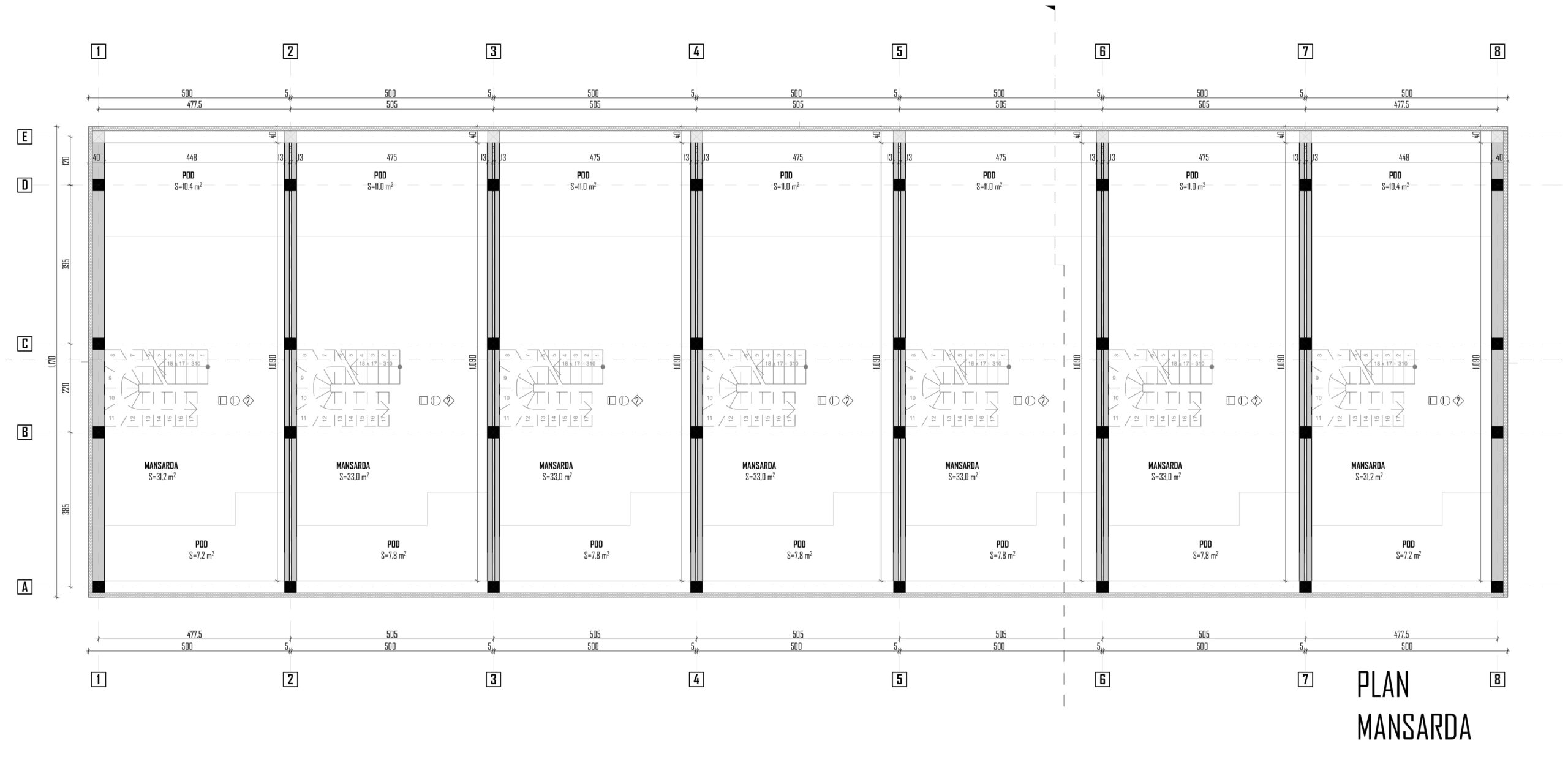
Regim de inaltime P + 1E + M. Suprafata utila 120 mp.

Compartimentarea se face astfel:

Parter – living, bucatarie, baie, terasa
Etaj – 2 dormitoare, baie pe hol.
Mansarda – 33mp utili si se preda finisata complet.

Gresia, faianta, parchetul, toate finisajele sunt de calitate superioara.
Casa se preda la cheie cu gresie, faianta, parchet, centrala termica, calorifere, termopan, instalatii electrice si instalatii sanitare complete.

Locuinta este izolata termic cu polistiren de 10 la exterior.

Se accepta orice tip de credit.
Daca aceasta oferta nu va satisface, contactati-ne cu incredere pentru a va oferi un tur al tuturor imobilelor. Va asteptam la vizionari!

Overview

  • ID 20013
  • Bedrooms 4
  • Bathrooms 2
  • Size 120 m2
  • Land Size 150 m2
  • Year Built 2021

Details

  • Property ID 20013
  • Price (pretul include TVA) 115,000 €
  • Property Type
  • Property Status
  • Rooms 1
  • Bedrooms 4
  • Bathrooms 2
  • Year Built 2021
  • Size 120 m2
  • Land area 150 m2
  • Regim înălţime: P+2E
  • Alte detalii zona

    Amenajare strazi: Asfaltate
    Mijloace de transport
    Iluminat stradal

  • Finisaje

    Podele: Parchet, Gresie
    Usi interior: Lemn
    Izolatii termice: Exterior
    Pereti: Faianta, Vopsea lavabila
    Ferestre cu geam termopan: PVC
    Usa intrare: Metal

  • Utilitati

    Utilitati generale: Curent, Apa, Gaz, CATV
    Sistem incalzire: Centrala proprie
    Acces internet: Fibra optica

  • Structură rezistenţă: beton
  • Amprentă la sol 50
  • Învelitoare acoperiş: Tigla
  • Nr. balcoane: 1
  • Suprafaţă desfăşurată: 130
  • Front stradal 20 m
  • Nr. fronturi 1
  • Nr. locuri parcare 2
  • Certificat energetic

    Clasa energetica: A

Floor Plans

Floor 1

Video

Compare